Discover new skills today!
Explore classes on computational design and emerging technologies.
Learn TodayStarting at just €3.99/month
This workshop focuses on merging parametric design, augmented reality, and AI visualization to transform digital concepts into immersive physical and visual experiences.
AI-Driven Architectural Design focuses on integrating AI tools to enhance creativity and streamline design processes in architecture.
The Parametric Optimizations Workshop focuses on managing design data and optimizing projects for sustainability and performance using Ladybug and LunchBox.
This workshop focuses on merging parametric design, augmented reality, and AI visualization to transform digital concepts into immersive physical and visual experiences.
AI-Driven Architectural Design focuses on integrating AI tools to enhance creativity and streamline design processes in architecture.
The Parametric Optimizations Workshop focuses on managing design data and optimizing projects for sustainability and performance using Ladybug and LunchBox.
This workshop focuses on merging parametric design, augmented reality, and AI visualization to transform digital concepts into immersive physical and visual experiences.
AI-Driven Architectural Design focuses on integrating AI tools to enhance creativity and streamline design processes in architecture.
The Parametric Optimizations Workshop focuses on managing design data and optimizing projects for sustainability and performance using Ladybug and LunchBox.
This 4-session workshop demonstrates how Studio Tim Fu uses AI and parametric design to transform architectural concepts into real-world designs.
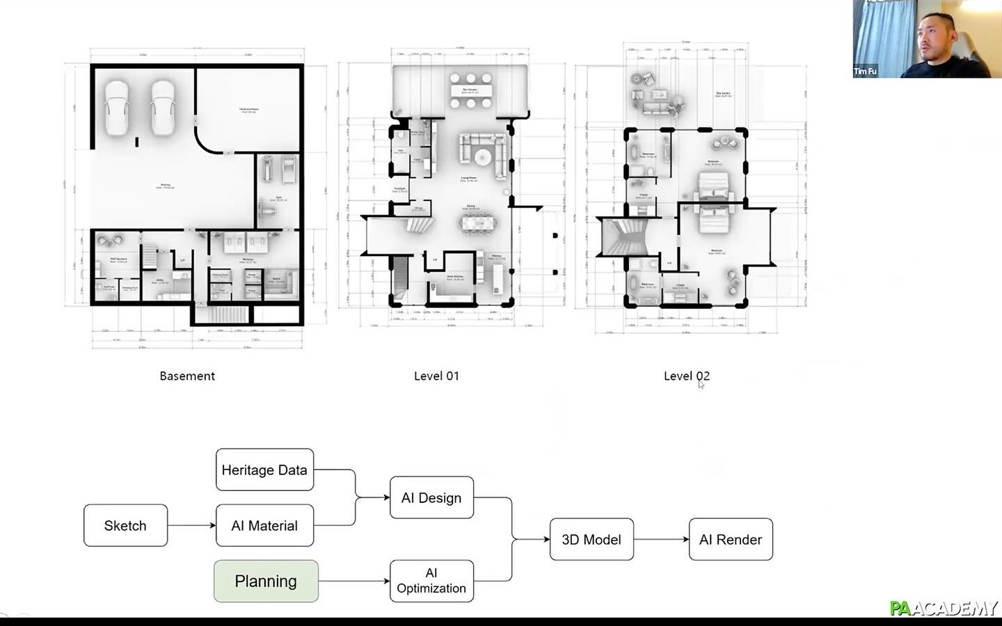
AI has changed the way we create, turning imagination into stunning visuals in seconds. But how do we take those ideas beyond just images and into real-world architecture? With AI tools evolving rapidly, the potential for integrating them into architectural design is greater than ever.
This course will be led by Studio Tim Fu, with Tim Fu and three of the studio’s leads teaching the fundamentals of design, scripting, parametric modeling, and rendering with AI. Together, we’ll explore how these tools can work in harmony to develop a strong creative vision and bring architectural concepts to life. Whether you're looking to refine your skills or rethink your approach to design, this course will give you the hands-on knowledge to confidently integrate AI and parametric tools into your creative process.
We’re back with Tim Fu and Studio Tim Fu, launching an all-new course module designed to push the boundaries of AI-driven architectural design. This time, Tim Fu and three of the studio’s leads will guide participants through a comprehensive, hands-on workflow that bridges concept design with AI, parametric modeling, and visualization techniques.
Participants will start by mastering advanced Midjourney techniques to transform their ideas into strong design concepts. They will then explore parametric architecture and scripting using JS5 and LLM, learning how to rationalize designs and generate 3D models with precision. From there, they’ll dive into rendering with Magnific and Krea, crafting highly realistic visuals. Finally, they’ll bring their designs to life using Kling and Runway to create animations and develop a cohesive, fully realized architectural concept.
In addition to developing technical and practical AI skills, participants will gain exclusive insight into the innovative workflows at Studio Tim Fu. They’ll get a behind-the-scenes look at the real-world projects we’re working on, learning how AI and parametric tools are shaping architectural practice today. This is a unique opportunity to see how these cutting-edge techniques are being applied to actual architectural projects.
Day 1 – May 17
Introduction & Course Overview – Meet the team with Tim Fu.
Fundamentals of AI-Driven & Parametric Design – Core principles of AI-generated architecture and structured, adaptable workflows.
Studio Insights – Exclusive behind-the-scenes look at Studio Tim Fu, exploring real-world applications of AI and parametric tools.
Day 2 – May 18
AI Scripting with JS – Learn JavaScript for parametric modeling and AI-driven design rationalization.
Day 3 – May 24
Rendering Masterclass – Advanced AI techniques for realistic parametric model visuals.
AI for Video Generation – Create AI-powered animations to bring architectural concepts to life.
Day 4 – May 25
Workshop, Critique & Demonstration – Hands-on refinement, feedback, and final workflow adjustments.
Final Submission – Due one week after the last session.
Intro + PAACADEMY Updates (06:32 )
Introduction to the workshop - PAACADEMY Updates
AI Workflows at Studio Tim Fu (54:17 )
AI Architectural Design Techniques
This presentation by Tim Fu covered a technical dive into AI-driven architectural design, featuring ideation and prompt engineering with Midjourney, advanced parametric design using P5.js and GPT models, and visualization workflows demonstrated through hands-on challenges and project examples from the Studio Tim Fu.
AI Design Workflow Overview (59:46 )
AI Image Generation Fundamentals Explained
This session explores how to balance designer intuition with AI-generated suggestions, explains the fundamentals of neural networks and diffusion models behind AI image generation, and demonstrates practical Midjourney techniques such as prompt engineering, aspect ratio, and chaos parameters for creative concept development.
AI in Parametric Design (34:33 )
Parametric Design and Midjourney Techniques
This session introduces the fundamentals of parametric design in architecture-explaining how rules and variables shape adaptive forms, distinguishing between linear and parametric behaviors, outlining three categories of parametricism, and demonstrating advanced Midjourney techniques for retexturing and scene modification.
ImageFX Overview (24:38 )
Curating Realistic AI Architectural Images
This session compares Google ImageFX and Midjourney for architectural image generation, discusses the strengths and limitations of each, and provides technical guidance on prompt consistency, aesthetic curation, composition and color balance.
Feedback & Design Iteration (29:31 )
Architectural Design Critique Session
This session provides detailed feedback on student architectural designs, focusing on the distinction between randomness and parametric logic, encouraging the use of basic geometric shapes and controlled variations offering practical tips for refining visuals.
Architectural Visualization Feedback Session (39:24 )
Refining Architectural Visualizations Critique
This session features in-depth critiques of student architectural visualizations, focusing on refining building forms, enhancing realism and composition, improving facade details and materiality, and offering practical suggestions for integrating parametric logic.
Parametric Design with AI (40:20 )
AI-Powered Parametric Design Process
This session demonstrates how to design with AI by combining generative models and coding tools to develop parametric architectural concepts, covering prompt strategies, iterative debugging, and the integration of platforms like ChatGPT and Grasshopper for creating and refining complex, controllable forms.
Integrating AI & Manual Coding (46:15 )
Parametric Design Workflow Strategies
This session focuses on practical strategies for integrating AI tools like ChatGPT with manual code editing in parametric architectural design, demonstrating when to modify code directly versus using AI assistance, how to iteratively refine scripts and parameters.
Parametric Modeling Experiment Review (48:11 )
Collaborative Exploration of Geometric Design
This session reviews participants’ creative experiments with parametric modeling, encourages sharing and refining code and ideas, and highlights the development of complex geometries for the next modules.
Geometry Coding Strategies (25:09 )
Enhancing Parametric Models with Feedback
This session provides detailed feedback and creative coding strategies for participants’ parametric modeling projects, including suggestions for achieving twisting geometries, troubleshooting code and design issues, and enhancing visual complexity and interactivity.
AI Parametric Content Creation (13:24 )
From Models to Social Media
This session explores transforming parametric models into AI-generated images and videos, emphasizing content planning, aspect ratios, style transfer, and post-production workflows
AI-Driven Visual Transformation (52:39 )
Parametric Models to Visual Content
This session demonstrates how to convert parametric models from P5 development into AI-generated images and videos, utilizing tools like Midjourney and Photoshop to experiment with style transfer, aspect ratios, and personalization features for creating compelling visual content.
AI Architectural Visualization Techniques (39:48 )
Enhancing Parametric Models with AI
This session explores practical techniques for converting parametric architectural models into high-quality AI-generated visuals, focusing on upscaling with Magnific AI, style transfer, prompt refinement, aspect ratio adjustments, and video creation using Runway and Photoshop
AI Video Workflow Essentials (43:29 )
Architectural Models to AI Videos
This session demonstrates the process of converting parametric architectural models into AI-generated videos using tools like Runway and Photoshop, emphasizing precise aspect ratio management, style transfer, prompt consistency, and post-production techniques to achieve high-quality, visually coherent outputs suitable for social media and architectural visualization.
Iterative AI Image Refinement (57:46 )
From Image Prompt to Video
This session showcases a hands-on, iterative workflow for transforming a simple image into a visually refined, AI-enhanced video using upscaling, material and style experimentation, Photoshop adjustments,
Final Project Critique Session (42:37 )
Collaborative Parametric Design Project Review
This session, led by Tim Fu, focused on collaborative critique and refinement of participants' parametric design projects, emphasizing iterative feedback, visual clarity, and preparation for final presentations and public showcasing.
Parametric Design Critique (52:57 )
Architectural Feedback Session
This session provided detailed critiques and suggestions on participants' parametric architectural designs, emphasizing clarity in visual storytelling, balanced complexity, and practical animation techniques for effective presentation.
Final Overview of Design Projects (54:52 )
Final Insights Before the Jury Submission
This session provided a comprehensive final overview of participants’ parametric design projects before jury submission, featuring detailed feedback on visual clarity, compositional relationships, and animation refinement.
First Jury Feedback Session (47:32 )
Jury Critique: Initial Submission Review
This session featured the jury’s detailed critique of the first set of final parametric design submissions, offering targeted feedback on conceptual clarity, form, materiality, innovation, and especially visualization quality, with the aim of refining each project ahead of the concluding review.
Concluding Jury Feedback Session (35:37 )
Jury’s Final Submission Critique Conclusions
This session captured the jury’s final round of critiques for the remaining parametric design submissions, delivering thoughtful feedback on formal complexity, visual realism, compositional decisions, and the effectiveness of animation and context, while encouraging participants to refine details and push creative boundaries for their presentations.
Access all PAACADEMY’s May workshops in one bundle and master BIM workflows, parametric design, sustaina...
The Intermediate Bundle offers five workshops on AI, BIM, sustainability, real-time design, and clay 3D printi...
Learn how to use advanced parametric design tools, AI in design workflows and computational design in architecture from pioneers in the field!
Learn how to use advanced parametric design tools, AI in design workflows and computational design in architecture from pioneers in the field!
Save 20% Today! - Limited Time! - 50 Seats Only!
Dynamic Sketching: AI-Powered Architecture is not just a workshop; it's a creative breakthrough for architects, designers, and students ready to revolutionize the way they present their ideas.
Beatrice Rogojan 2025-05-25 18:57
Studio Tim Fu thank you very much for the knowledge, innovation and mind-expanding approach you bring to this world. This course was truly eye-opening and incredibly inspiring! Please keep shining your light on the world!
Emilie Chidiac 2025-05-26 14:09
It was a great workshop, really enjoyed it. Workshops are a bit long (4hours). I loved the fact that we had one week to work on what we learned the first weekend.
Guest fYoUED 2025-05-26 15:43
Awesome course :)
Celestino Geronimo Jr. 2025-05-26 16:38
Fantastic course. Very informative, top-notch instructors from the industry. Will definitely be on the lookout for other lessons.
Celestino Geronimo Jr. 2025-05-26 16:41
Excellent course. Top notch instructors, all experts in the industry. Will be looking forward to future courses in PA Academy.
Maria A. Dumitriu 2025-05-30 21:44
Everything was awesome. I liked it very much and I am looking forward to subscribing to the next workshops.
Ada Pena 2025-05-31 11:43
Parametric Intelligence 2.0 workshop by Studio Tim Fu was exceptional: hands-on, expert-led, exploring AI-assisted parametric design, p5.js modeling, intuitive UI, Midjourney rendering, and Runway video editing. Transformative and fun!
anas 2025-06-01 10:34
Great Team and Workshop , thank you
Tom Keller 2025-06-04 09:43
The Team was incredible and I learned so much in such a short time!
Tom Keller 2025-06-04 09:43
The workshop was great and the team was amazing. Learned so much in so little time.
Luis Antonio 2025-06-09 17:04
Great Workshop! Love the new things that I learned!
Mohamad Serhal 2025-07-04 04:30
very nice workshop
Geddy Lee 2025-07-23 06:20
eye-opening experience!
Yau Wai Lam 2025-08-02 19:54
Very insightful and inspiring. this new workflow is somewhat challenging but exciting at the sametime. Is it time to say good bye to rendering softwares?
Florian Heiland 2025-08-28 10:13
Insightful, packed course. Great strategies, great explanation. State of the art.
imad hanna 2025-09-28 15:48
Great session